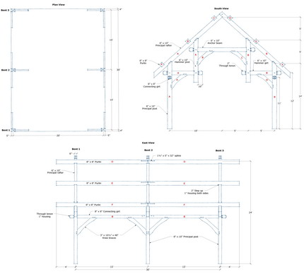
Timber Frame Hammer Bents
Packages from $20,000 & $32,500


TWO FRAME 20' x 15' 336/672 sq.ft. living space.
Engineer Approved.
2500 board feet.
THREE FRAME 20'x 30' 651/1302 sq. ft. living space.
Engineer Approved.
4500 board feet.
Douglas Fir 8" x8" timbers.
Mortise & Tenon Joinery.



Photos
Click on photos below for a larger image






